Borgarráð samþykkir nýtt hús við Breiðholtskirkju

Nýtt 120 metra langt hús við Breiðholtskirkju hefur verið samþykkt af borgarráði.
eftir
fyrir 6 mánuðir síðan
1 mín. lestur

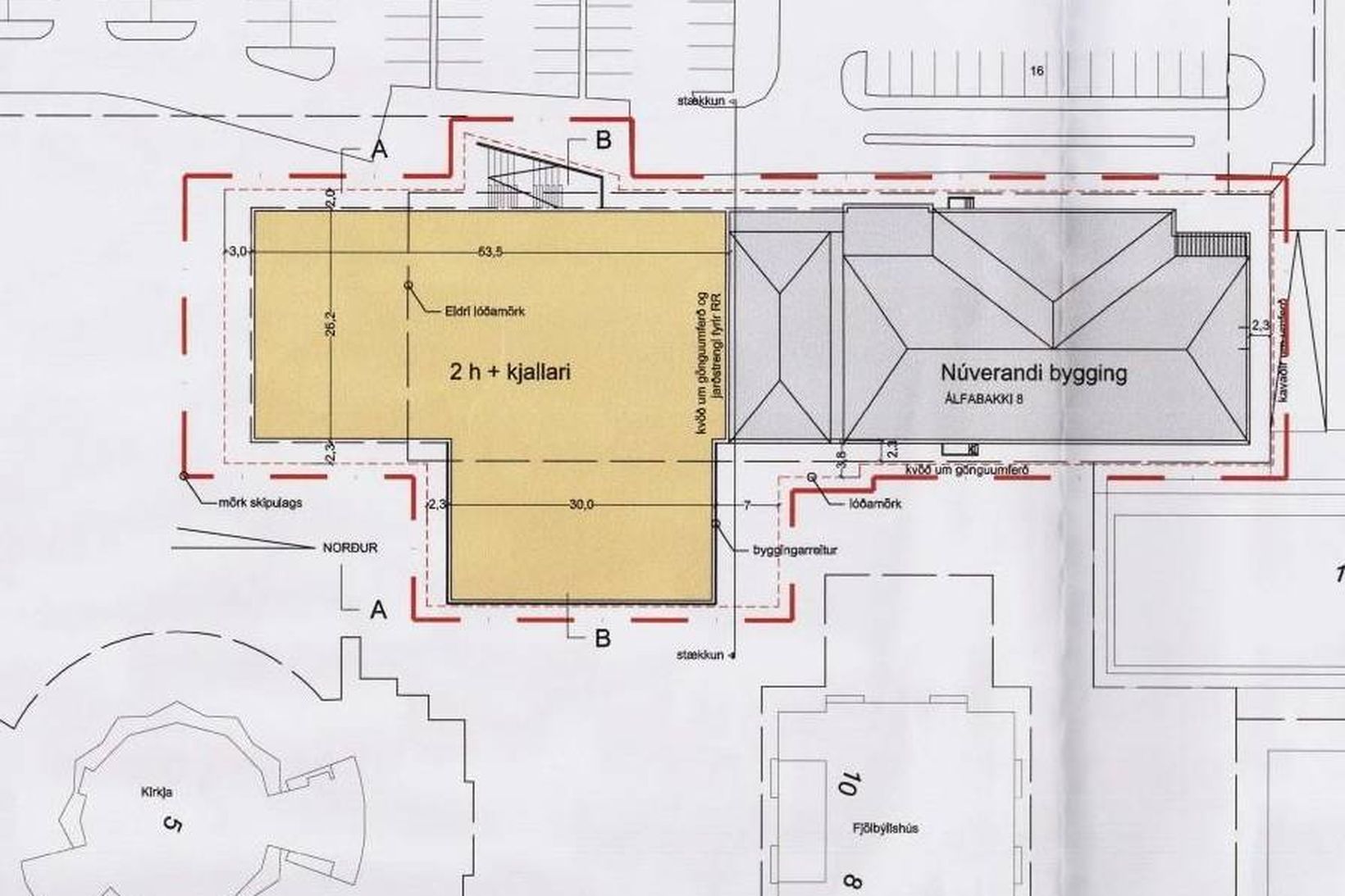
Borgarráð hefur samþykkt stækkun á bíóhúsinu að Álfabakka 8, þar sem loðahafi greiðir 65 milljónir króna fyrir lóðina. Samkvæmt samþykktinni verður loðahafa skylt að greiða 6.000 krónur fyrir 3.253 fermetra byggingarétt, sem nemur alls 19,5 milljónum.

Áætlað byggingarmagn á lóðinni er 10.000 fermetrar. Fulltrúar Sjálfstæðisflokksins og Framsóknarflokksins sátu hjá við afgreiðslu málsins. Sjálfstæðismenn skrifuðu í bókun sína að ekkert lægi fyrir um hvernig fyrirhuguð uppbygging myndi lítast, né hvaða áhrif hún myndi hafa á ásýnd og starfsemi í Mjóddinni.

Samkvæmt deiliskipulagstillögu er gert ráð fyrir að bíóhúsið lengist um 53,5 metra, sem þýðir að heildarlengd hússins verður 120 metrar. Til samanburðar er verslunarhús Netto í Mjódd 112 metrar að lengd, en vöruhús og kjötvinnslan við Álfabakka 8a mælast 215 metrar.

Tengt efni

Powered by GetYourGuide

Nýjast frá Stjórnmál

Fyrri grein

Chicago tilkynnt sem stríðssvæði af Bandaríkjastjórn til að senda hermenn

Næsta grein

Alþingi samþykkir tillögu um borgarstefnu til að efla borgarsvæði Íslands

Don't Miss

Geitey ehf. innkallar reyktan lax og silung vegna listeríu

Neytendur eru beðnir um að farga reyktum lax og silung vegna Listeria monocytogenis.

Unnar Stefán Sigurðsson sækist eftir oddvitasæti Sjálfstæðisflokksins í Reykjanesbæ

Unnar Stefán Sigurðsson tilkynnir um framboð sitt til oddvitasæti Sjálfstæðisflokksins.

Skrúfa fannst í vínarpylsu frá Sláturfélagi Suðurlands

Sláturfélag Suðurlands innkallaði vínarpylsur eftir að skrúfa fannst í vöru.